行业知识

机组并网后励磁装置灭磁柜电阻元件烧损案例分享

2023-05-31 08:34:37 科威

机组并网后励磁装置灭磁柜电阻元件烧损案例分享


1、发生前运行状态:

1号发电机正常运行,有功功率为355MW。2号机启动并网过程中,发变组处于冷备。第一串断路器5011、5012、5013合位,XX I线正常运行;第二串断路器5021、5022、5023合位,XX II线正常运行,第三串断路器5033合位,5031、5032分位,高压电抗器正常运行。

2、事件发生过程:

02:00:00 #2机组升温升压过程中。

03:18:00 #2机组冲转,200rpm暖机后继续升速。04:37:15 汽轮机定速900rpm,进行暖机。

05:01:00值长令:#2发变组由冷备转热备。#2机进行《#2发变组由冷备转热备》就地和NCS操作。

06:57:36 #2汽轮机冲转至3000rpm。

07:06:00 #2发变组由冷备转热备完毕。

07:25:45 值长令:#2发变组由5031开关与系统并列。#2机主值进行《#2发变组由5031开关与系统并列》操作。

07:26:37 灭磁开关合闸。

07:27:30 #2发电机出口电压升至额定电压值22kV,核对#2发电机空载参数正常(空载励磁电压147V,空载励磁电流值:1948A),开始用5031开关同期并网。

07:28:43 5031开关合闸 。

07:28:50 #2发变组并网,有功7MW,无功71MVar。

07:28:56 灭磁开关分闸。励磁电流由2362A降至23A,励磁电压值显示1122V,无功功率由71MVar升至-332MVar,励磁系统欠励限制动作,发电机进相运行。升压站5031断路器未跳闸。

07:30:43 主值手动将#2汽轮机打闸,发电机逆功率保护动作,5031开关跳闸,#2发变组与系统解列。

07:33:55巡检赶赴#2机励磁小间,发现室内烟气很重,线性电阻柜内部有明火,大量黑烟从柜顶冒出,组织运行人员同时拉开四个整流柜进出线刀闸,断开启励电源后灭火。DCS画面录波曲线如下(可发现跨接器电源在灭磁开关跳合后均没有上电)。

07:45:40#2炉手动MFT。

3、设备损坏情况:

2号机组线性电阻元件烧损,造成励磁调节系统不能正常投入运行。设备修复费用为133160元。

4、原因分析:

1技术分析

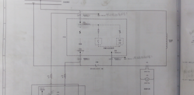
1.1正常情况下,机组停机或事故情况,灭磁开关跳闸,自动合跨接器将灭磁电阻接入转子回路,依靠灭磁电阻消耗转子能量(见图二);启机时灭磁开关合闸时应联跳跨接器,脱开灭磁电阻;本次事件中经现场检查结合DCS历史记录,可以判定,在运行恢复措施过程中,2号机励磁系统跨接器控制电源未合闸(见图三),导致灭磁开关合闸后,跨接器未联跳断开,励磁电压直接加到灭磁电阻两端,在起励升压至并网过程中灭磁电阻一直通过大电流,使得跨接器线性电阻及线性电阻两侧接于转子两极的电缆发热,正负两极的电缆由于过热融化,导致外皮融化绝缘降低,正负两极电缆发生出现间歇性放电(励磁电压降低,励磁电流升高)引起短路(见图四)跳开灭磁开关。

1.2灭磁开关跳开后,5031断路器并没有跳闸,灭磁电阻继续吸收电网通过发电机定子感应到转子的磁场能量。转子磁场能量超出了灭磁电阻及其连接电缆的承载能力,造成灭磁电阻及连接电缆高温发热起火以及部分元器件的烧损。

1.3灭磁开关跳开原因分析:从机组保护录波中可以看出,励磁变高压侧二次电流(13A)(见图四)折算到直流侧的一次短路电流(13A×(300A/5A)(励磁变高压侧CT变比)×(22kV/1kV)(励磁变变比)/0.816(整流系数)=21029A)超过灭磁开关脱扣电流(18000A),从而造成灭磁开关电磁脱扣跳闸。

1.4 5031断路器未跳开的原因分析:此时5031断路器由于失磁保护和逆功率保护均未达到动作条件,所以5031断路器未动作跳闸。

1.4.1失磁保护未达到动作条件分析:发变组失磁保护采样励磁低电压判据,失磁保护共分三段,均作用于跳机,当无功功率为负值且达到定值,判据如下:1)失磁保护I段判据(下列三个条件同时满足):阻抗判据满足、转子电压判据满足、母线低电压满足。2)失磁保护II段判据(下列三个条件同时满足):阻抗判据满足、转子电压判据满足、机端低电压判据满足。3)失磁保护III段判据(下列两个条件同时满足):阻抗判据满足、转子电压判据满足。灭磁开关跳开后,机端电压由22kV降至20kV,机端电流在1000A左右,励磁调节器判为负载态,继续触发可控硅导通。使得整流侧电压很高至1000V左右。由于转子电压判据所用的电压量采集点在灭磁开关上口整流侧ZZ:1、ZZ:3端子(见图五)。励磁低电压取自灭磁开关因而失磁保护中励磁低电压判据不满足条件,失磁保护没有动作。导致事故扩大线性电阻烧损。

1.4.2逆功率保护未达到动作条件分析:灭磁开关跳开后,5031断路器仍在合位,且主汽门没有关闭。发电机继续发出有功功率,吸收无功功率。变为异步发电机运行状态。机组并没有出现逆功率,因而逆功率保护没有动作。

1.5 失磁保护转子电压取点位置不合理,未考虑到灭磁开关跳开后的情况,测点处无法及时反映实际转子电压变化。造成保护未动作。

2、管理分析

2.1 操作票管理执行存在漏洞。发电部在发变组由冷备转热备操作票中没有涉及励磁系统跨接器电源的检查,因此就地检查时未对跨接器电源进行检查,也没有发现DCS励磁系统画面中“励磁系统跨接器电源掉电”警示灯亮。发电运行部在此次事件中负有主要责任。

2.2设备管理部未及时完善跨接器控制电源开关名称标示;不能直观的给运行操作人员以提示及警告,造成运行人员误判断。设备管理部在此次事件中负有次要责任。

2.3  现场并网操作过程中,生产技术部、设备管理部、发电运行部相关监护人员均到位,但仍没有发现“励磁系统跨接器电源掉电”信号,没有及时提醒,失去监督作用,监督责任流于形式。

5、采取措施及教训:

1、对灭磁电阻柜烧损元件进行更换,修复完毕后对整个励磁系统进行检查并做相关电气试验。

2、设备管理部根据南瑞继保厂家意见,与设计院联系确认后,将失磁保护所用的励磁电压采样从ZZ:3端子改接自转子侧ZZ:2端子,确保失磁保护动作可靠。

3、发电运行部完善操作票管理,操作票及配套的检查卡必须严格执行,并逐条签字确认。

4、设备管理部对全厂电气、热工系统控制、动力电源开关、压板等进行全面排查,完善所有电源空开标识。

5、发电运行部继续加强运行人员培训,提高操作技能。在电气系统转态之前,一定要对当前状态进行确认,状态确认完毕再进行下步操作。

6、发电运行部开机过程中加强监护,发现问题及时反馈,采取相应措施,避免事件扩大。

7、发电运行部严格执行操作票和监护制度,遇电气重大操作,值长必须亲自监护或指派有经验、负责任的主值进行监护,按照操作票要求对机组电气各系统状态进行再确认,重点对有检修工作或试验的设备、控制电源、保护压板、控制方式等进行梳理确认。发电运行部电气专业专工作为第二监护人,全程跟踪监护运行人员操作,并对重要操作现场检查。

8、发电运行部严格执行设备操作权限制度和主值日志记录制度,现场属运行的设备的操作必须由运行人员进行操作同时做好记录,其他人员不得乱动。

9、发电运行部完善管理制度,落实各级运行人员安全运行的责任,明确值长为当班期间运行操作安全的第一责任人。

10、生产技术部组织发电运行部、设备管理部完善相关制度,保证重大操作过程中安全措施恢复检查到位。

附图:

图片关键词

(图一:开关动作时间)

图片关键词

(图二:灭磁回路原理图)

图片关键词

(图三:跨接器控制电源空开)

图片关键词

(图四:正负极电缆放电波形)

图片关键词

(图五:励磁电压接线)


首页
产品
新闻
联系